Netherworld Haunted House's quest to move across Gwinnett County got one step closer to reality Wednesday night.
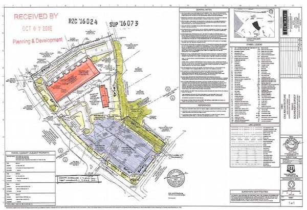
The world-acclaimed attraction — which has done big, spooky business on Dawson Boulevard near Norcross for two decades — filed paperwork in October asking for rezoning and special use permits that would allow it to move to a 9.5-acre site on West Park Place Boulevard, just south of U.S. 78 near Stone Mountain Park.
The Gwinnett County Planning Commission unanimously voted to recommend approval of both at its Wednesday night meeting. That means a vote from the county's Board of Commissioners is now all that's needed to make the relocation possible.
"I think we as Gwinnett County are glad you’re staying in Gwinnett County," Planning Commission Chairman Chuck Warbington said.
MORE: Video: AJC reporter braves the Netherworld Haunted House
Netherworld's prospective move would involve renovating two existing warehouses and require the West Park Place property to be rezoned to a "light industry district" classification. A special-use permit would also be needed for the haunted house's outdoor offerings(like costumed monsters interacting with guests as they wait in line."
According to planning department notes on the project, "a variety of other uses" are also proposed by Netherworld, including "film industry uses and private events such as escape games, weddings and corporate events."
"The applicant proposes other outdoor uses such as seasonal-related events such as a pumpkin patch," documents said.
Credit: Gwinnett County Planning Commission documents
Credit: Gwinnett County Planning Commission documents
A business owner in the area near the site was the only person to speak in opposition of the project during Wednesday's meeting, saying he was worried about possible traffic and parking problems.
Netherworld's site plan suggests there would be four access points to the property, three on West Park Place Boulevard and another on West Park Court. An expansion of existing parking options is also proposed and attorney Shane Lanham, who is representing the haunted house, said there have also been talks with a nearby storage facility about implementing their parking lot.
"We’re very excited about this site and we’ve got a lot of room to grow here," Lanham said.
About the Author
Keep Reading
The Latest
Featured




