Residents want to stop apartments, townhomes on outskirts of Loganville
Gwinnett County officials will see red when a loose coalition of disgruntled homeowners show up to two March meetings.
Residents living in the outskirts of Loganville plan on wearing bright-colored clothing at public meetings to show they oppose apartments and townhomes coming to their rustic slice of suburbia.
Bill Dale, the group’s unofficial leader, said he and his family were drawn to the “suburban bordering on rural” character of Willowwind Park subdivision across the road from the site of the proposed homes. Almost two decades later, he worries the development will change the area surrounding Loganville for decades to come.
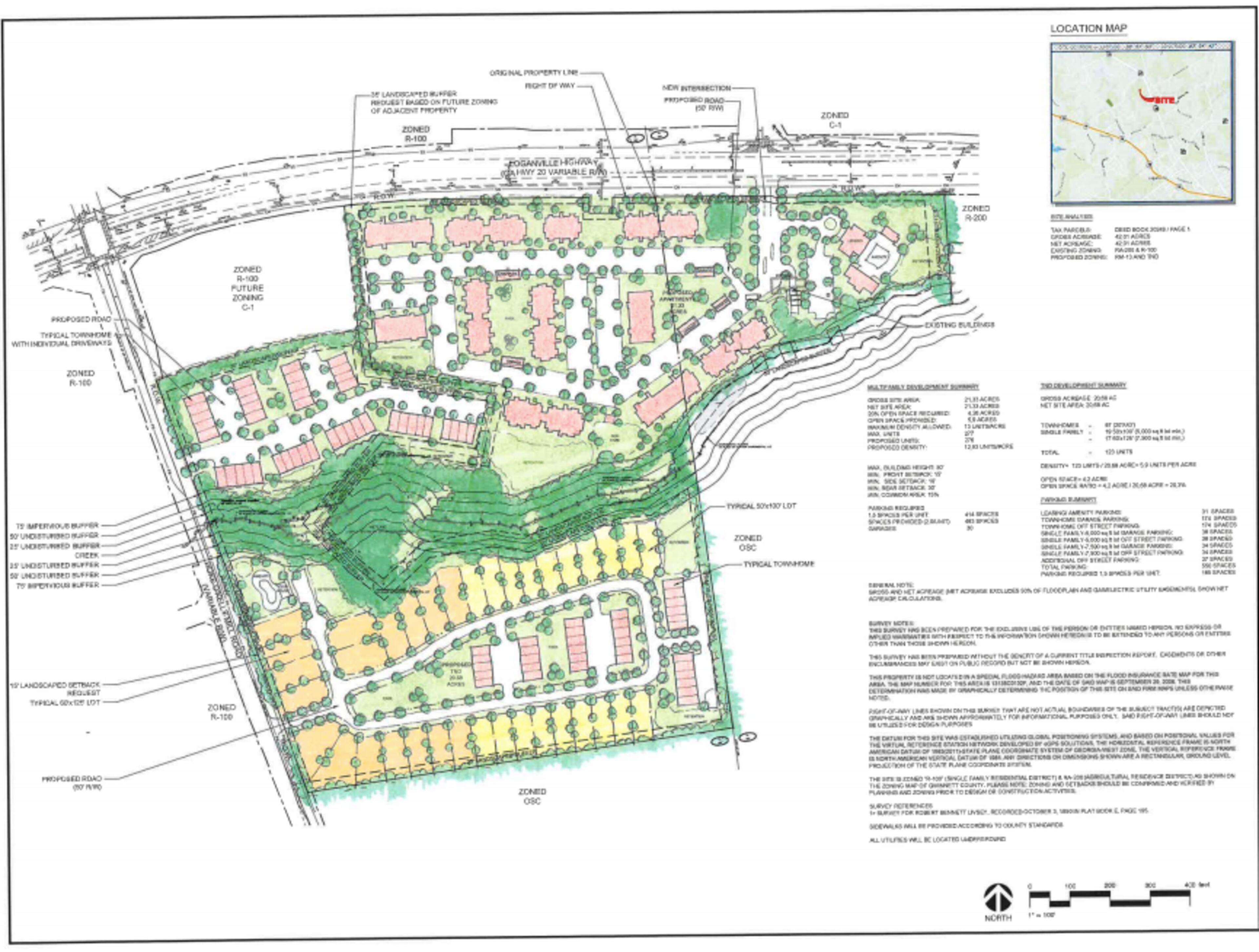
Marietta-based developer Retail Planning Corporation wants to build 276 apartment units, 87 townhomes and 36 single-family homes on about 42 acres of land at the corner of Loganville Highway (Ga. 20) and Hoke O’Kelly Mill Road in southeastern Gwinnett County on the outskirts of Loganville and Grayson.
The developer went before the Gwinnett County Planning Commission in early February, asking for it to recommend that the county’s Board of Commissioners greenlight two rezoning requests needed to build the nearly 400 homes.
The county’s planning and development department recommends denial of the requests, saying the development would not fit with the “rural nature of this part of the county.” But the Planning Commission held off on making its recommendation, tabling it until its March 2 meeting. County commissioners will vote on the matter on March 23.

Serving as president of his homeowners association, Dale and a posse of fellow HOA presidents showed up to the Planning Commission’s February meeting to voice their displeasure with the development. They waited hours to speak, expressing their concerns that their almost-rural pocket of the county could disappear.
At the meeting, Shane Lanham, the developer’s attorney, justified building apartments and townhomes, arguing they fit the criteria outlined for future development in the area under the Gwinnett County 2040 Unified Plan. On the county’s future development map, the location is intended for mixed-use development, which includes medium- and high-density apartment units.
Shannon Rowland, who lives close to the site, disagrees with the developer’s justification by way of the unified plan. Another section of the plan says development should be “responsible and appropriate relative to the existing character of the area,” which Rowland believes would change with the addition of apartments and townhomes.
Rowland, who moved to the area to escape the more developed corners of the county, sprang into action after seeing a poster affixed to a stop sign, creating a website and distributing a petition which garnered more than 1,200 signatures before the Planning Commission’s meeting.
During the meeting, Lanham also stressed that Ga. 20 is already home to several multi-family homes and high-density commercial developments to the north and south of the site. With the recent widening of the highway and installation of an 18-inch sewer line interceptor beneath it, the developer believes the area is primed for growth, he said.
“We’re definitely not the far edge of development,” Lanham said. “We all know that this part of Gwinnett County is growing.”
During the public hearing at the Planning Commission meeting, Dale spoke on behalf of nearly 40 residents in attendance, who stood up to signal solidarity before he pleaded their cause. “We recognize growth comes,” Dale said. “Let’s just be intelligent about it.”
Since Dale purchased his home, other developers have built more single-family homes in the area. But adding apartments and townhomes could create a domino effect, attracting the eye of even more developers and leading to unprecedented growth, Dale said.
“I think you’d probably see a pretty significant exodus, because the vast majority of people chose to move here for the character that currently exists,” Dale said. “Once that begins to change and feel more urban, the interest in staying would go away.”
Despite holding no jurisdiction over the county’s decision, Loganville Mayor Rey Martinez attended the February meeting to publicly voice his opposition, saying he was concerned about a rapid influx of traffic inside the city limits less than three miles away that could result from the development.
Martinez disagreed with the developer’s assertion that the Loganville area needs more apartments, as a 320-unit complex is underway on the Walton County side of the city only a few miles from the proposed development.
In an effort to reach a compromise, Dale and other members of his loose coalition hopped on a video conference last week with Lanham, an executive at RPC, the property owner’s broker and District 3 Planning Commissioners Glen Williams and Ben Archer.
The residents laid out their concerns, asking the developer to forego apartments and townhomes and build only single-family homes, Dale said. The developer offered to beef up traffic infrastructure or restyle the apartments but refused to omit multi-family homes from its plans, he said.
Representatives for RPC and members of the Planning Commission declined or did not respond to requests for comment for this article.
Regardless of the planning commission’s choice, the county’s Board of Commission could choose to ignore its recommendation. District 3 Board of Commissioner Jasper Watkins III, who represents the area in question, declined to comment.



