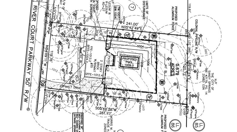
Residents at 35 River Court Parkway in Sandy Springs recently received the approval needed to build a pool at their home. The city’s mayor and council voted unanimously to approve a Metropolitan River Protection Act Certificate following a review and approval by the Atlanta Regional Committee.
Properties within 2,000 feet of the Chattahoochee River are required to comply with the Metropolitan River Protection Act. The regulations call for review and approval by the ARC, a public hearing and approval by the local governing authority and issuance of a Metro River Certificate. The review focuses on whether the project is consistent with the Chattahoochee Corridor Plan, which limits clearing and impervious surface within the river corridor.
Plans provided to the city show a strategy for replacement of any trees or shrubs removed as the result of construction.
About the Author
Keep Reading
The Latest
Featured


