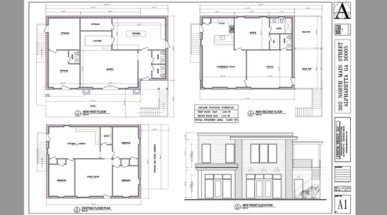
The Alpharetta City Council recently approved a special use permit for Pavlova by Marian, a restaurant, bakery and coffee shop, at 302 North Main St. on the west side of North Main Street north of Mayfield Road.
The eatery will occupy a 1,648-square-foot suite on the first floor in the existing two-story building in downtown. The property owner intends to utilize the second floor of the building for a professional office.
Approval came with six conditions including a requirement for the developer to provide a required 10-foot landscape strip along the property frontage, parking lot landscaping, and 5-foot landscape strips along the north and south property lines.
Hours of operation will be 10 a.m. to 8 p.m. daily with three employees.
The plan shows 16 parking spaces which is more than the 7 required by the city’s Unified Development Code. The submitted plans depict a new front elevation on the existing building.
About the Author
Keep Reading
The Latest
Featured


