Braselton’s mayor and city council will hold a public hearing at 7 p.m. Dec. 9 at the Braselton Police and Municipal Court Building, 5040 State Route 53 on a remand order from the Superior Court of Jackson County to review the revised master plan to develop 229.29 acres on Ga. 211.
The proposed project would include detached single-family homes and commercial/retail development.
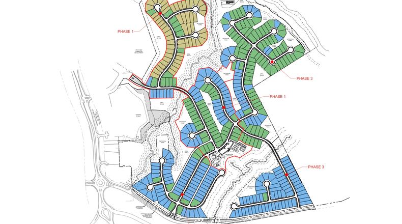
The revised plan has eliminated townhomes and includes only single-family detached homes. The new plan also includes a buffer between homes and the planned commercial/retail portion of the development. Amenities for the development will include a community clubhouse, pool and additional recreational facilities.
Information: Kevin Keller at kdkeller@braselton.net or 706-654-5797.
About the Author
The Latest
Featured


