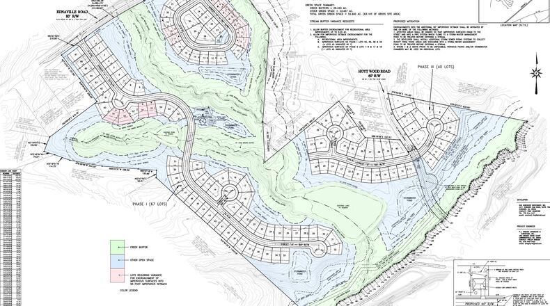
The Braselton Zoning Board of Appeals will hold a public hearing at 7 p.m. Feb. 6 at the Braselton Police and Municipal Court Building, 5040 State Route 53 to consider an application for a stream buffer and impervious surface variance on Ednaville Road.
Old Norcross Investments, Inc. is hoping to develop the approximately 83.3 acres as a “Conservation Subdivision.” The “Standards for Conservation Subdivisions” require a minimum 75-foot buffer adjacent to the banks of all intermittent and perennial streams. Even though the site is approximately 10.1 miles upstream of the Winder/Mulberry Water Intake, it still falls within the 7-mile radius of the Winder/Mulberry Water Intake. Because it is within the 7-mile radius, the buffer requirements are expanded to a 100-foot buffer with an additional 50-foot impervious surface setback adjacent to the buffer.
These expanded buffers, when combined with the multiple streams traversing the site, flood plain, areas of rough topography and the irregular shape of the property “creates a hardship from which Old Norcross, Inc. seeks relief by means of a variance.”
Questions: Kevin Keller at kdkeller@braselton.net or 706-654-5797.
About the Author
Keep Reading
The Latest
Featured


