Congress established the Chattahoochee River National Recreation Area, a unit of the National Park Service, in 1978 to assure the preservation and protection of a 48-mile stretch of the Chattahoochee River from Buford Dam to Peachtree Creek.
To comply with government guidelines and to protect the Chattahoochee River, the Atlanta Regional Commission requires a Metropolitan River Protection Act Certificate for any land-disturbance activity in the Chattahoochee corridor. This ensures protection of the water supply and surrounding areas.
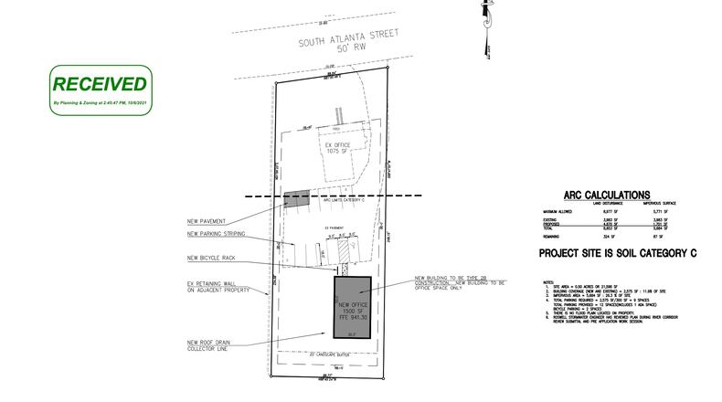
The Roswell City Council recently approved a Metropolitan River Protection Act Certificate for the construction of a new office building at 320 South Atlanta St. The Atlanta Regional Commission reviewed the request and found it to be consistent with the Chattahoochee River Corridor Plan.
This project will involve the construction of a new office building, parking area, and small bioretention area with plantings. An existing small office building on the site will remain. The project will also include two new paved parking spaces, striping of existing and new parking spaces, a bicycle rack and a roof drain.
About the Author
Keep Reading
The Latest
Featured


