The initial construction and renovation of the Johns Creek City Hall was completed in 2019. Soon after, the city identified a list of necessary improvements and adjustments to make the building a better long-term fit for the city. The city funded the first $250,000 for improvements in FY2020.
Improvements began in late 2020 to the public restrooms and to enclose the sally port/garage to meet the needs of the police department. The next renovations provided separation of spaces for the court and finance area and added sinks on the first floor (in the community development area) and on the second floor (in the police department area) paired with an extension of the hot water line.
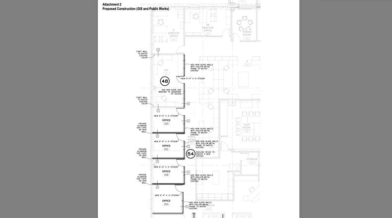
To continue improvements, the Johns Creek City Council recently approved a $110,217 contract with the lowest of two bidders, Scott Contracting, to construct improvements to the Public Works and GIS work area on the third floor.
About the Author
Keep Reading
The Latest
Featured


