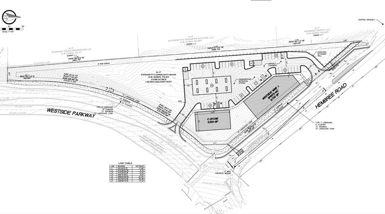
Westside Commercial Properties, Inc. is seeking a special use permit to build and operate a liquor store at 2125 Hembree Road. The proposed 2,700-square foot Westside Wine & Spirits would be located at the intersection of Hembree Road and Westside Parkway with proposed driveway entrances from both roads. The property is just over 3 acres and is currently vacant and heavily wooded.
Alpharetta’s Community Zoning Information Meeting will be held online at 6 p.m. March 10. This is an informal meeting to allow the public to view current applications and speak with the applicants. The Planning Commission will hear the application at 6:30 p.m. April 1 in the Alpharetta City Hall Council Chambers, 2 Park Plaza, Alpharetta, Georgia.
Items forwarded by the Planning Commission will be considered by the City Council in April.
Details: www.tinyurl.com/ryscs6v4.
About the Author
Keep Reading
The Latest
Featured


