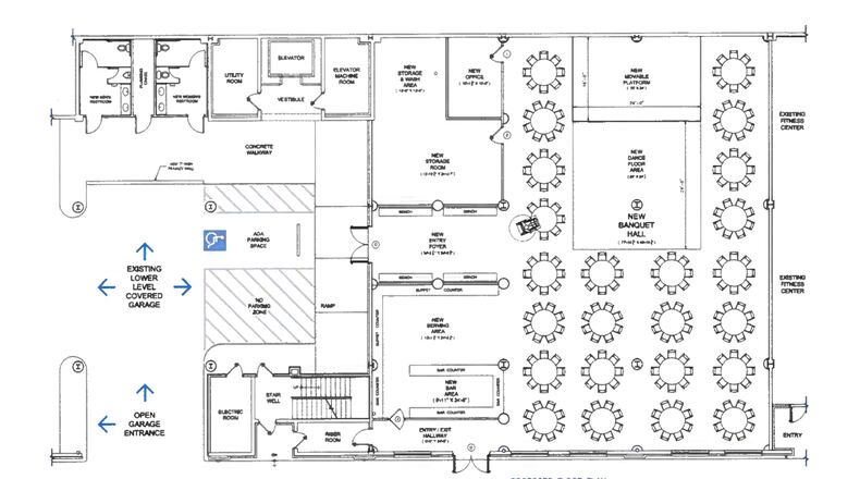
The Alpharetta City Council recently approved a request to operate a special event facility in a 5,794-square-foot suite in the Windward Crossing shopping center at 5815 Windward Parkway, Suite 101.
The property, at the southeast corner of Windward Parkway and North Point Parkway, will offer space for corporate and business conferences, banquets, wedding receptions, graduation and birthday celebrations. Catering, photography, music and entertainment will be provided by outside vendors.
Suite 101 is in the basement level of the shopping center and can be accessed from the main level of the center by an elevator, as well as at the rear of the building through the basement level parking deck. Approval came with several conditions including a maximum occupancy of 225 people.
About the Author
Keep Reading
The Latest
Featured



