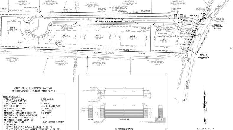
Following a recent public hearing, the Alpharetta City Council approved a request to gate a new private street subdivision with five homes on 5.66 acres at 1580 Mayfield Road on the north side of Mayfield Road between Gransley and Harrington Falls.
The gated entrance provides stacking space for four passenger vehicles, as well as a U-turn accommodating the turning space needed by delivery trucks between the call box and gates.
The entrance gate includes brick columns with lighting and five rail horse fence metal gates. The landscape plan includes decorative landscaping in the entrance median and along the frontage near Mayfield Road.
About the Author
Keep Reading
The Latest
Featured



