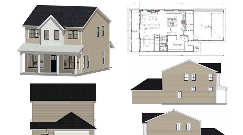
Following a public hearing earlier this month, the Norcross City Council approved a new 27-lot single family residential development between Hunt Street and Beutell Street. Twenty-three of the homes will be new construction, with four existing units integrated into the new development.
Approval came with a number of conditions including the relocation of some of the driveways, and installation of curb and gutter along Hunt Street and Beutell Street.
The developer will also provide $575 per unit to the city sidewalk fund to mitigate increased pedestrian traffic from the development onto the unimproved sections of both Hunt and Beutell Streets.
About the Author
The Latest
Featured


