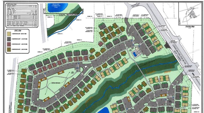
The Braselton Planning Commission will consider a rezoning request to build 219 single-family homes and townhomes at 7 p.m. Aug. 23 in the courtroom of the Police and Municipal Court facility, 5040 Highway 53.
The proposed project, tentatively called Braselton Villas, will consist of 219 single-story rental homes and townhomes targeting the 55+ adult community on Lewis Braselton Boulevard. The proposal from Lyons Group Acquisitions, LLC states that “unlike three-story or four-story apartment complexes, all our homes are single-story with a private backyard… Our proposed project is in alignment with Braselton’s Comprehensive Plan which states the need for ‘Missing Middle Housing’.” If approved, construction would begin in 2022 with a completion in 2023.
The Town Council will consider the same request at 4 p.m. Sept. 9 at the same location.
About the Author
Keep Reading
The Latest
Featured


