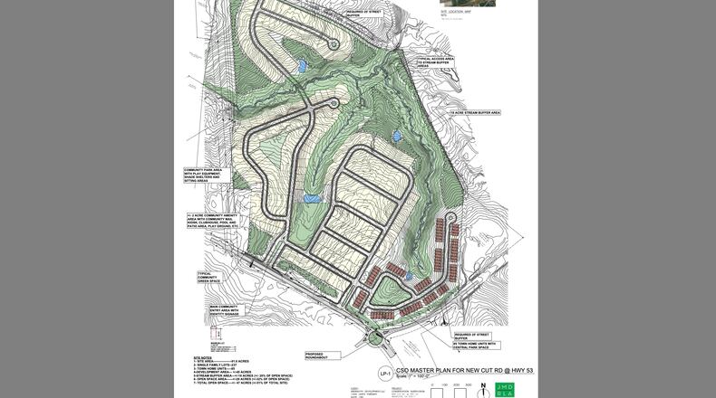
The Braselton Planning Commission will consider a rezoning request to build 311 attached and detached single-family dwelling units at 7 p.m. Aug. 23 in the courtroom of the Police and Municipal Court facility, 5040 Highway 53.
The proposed project would be built on about 92 acres on the northern side of the intersection of Highway 53 and New Cut Road. The property is currently zoned for agricultural use. The applicant, Abernathy development Company, LLC, is seeking to rezone and annex the property into Braselton town limits. Specifically, the developer is requesting to rezone as single-family attached residential – high density to develop 233 homes and 87 townhomes.
The Town Council will consider the request at 4 p.m. Sept. 9 at the same location.
About the Author
Keep Reading
The Latest
Featured



