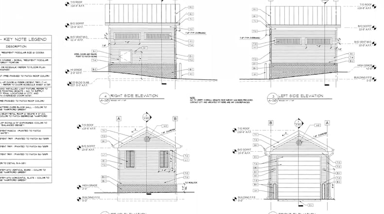
The Norcross City Council recently approved a contract for the construction and installation of a trash compactor enclosure.The new compactor will be constructed in the city‐owned parking lot on Wingo Street directly behind Paizanos.
Malco Construction, Inc. was the lowest of 4 qualified bids resulting for a project cost of $114,682. Funds for this project come from the sanitation budget.
The project will involve using the Public Works Department to demolish asphalt and provide a pad‐graded site for the enclosure construction. Construction will include installation of a compactor enclosure substantially similar in style to the existing enclosure on Skin Alley. Final construction will also include minor repaving and construction of concrete access sidewalks for ADA and general pedestrian use.
About the Author
Keep Reading
The Latest
Featured



