Fayette students enrolled in the new aviation program at Starr’s Mill High School will be free to move about a specially designed classroom.
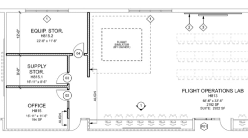
The Board of Education voted unanimously at its monthly meeting Monday to approve $50,000 to renovate three adjoining classrooms at the school and turn them into a flight operations lab that will house simulators and other equipment once fully furnished. T
he aviation instructional pathway was approved by the board in February and will meet state guidelines. More than 65 students from all five high school attendance zones are registered for three sections of the course’s first year this fall, although the initial classes will be taught in an existing classroom. The renovation, which will be done by county facilities staff and include office and storage space, will make the school eligible for a $90,000 state grant to equip the lab.
The grant requires that the flight course be offered for at least five years.
About the Author
Keep Reading
The Latest
Featured



