Avondale Estates’ commission and Downtown Development Authority are once again mulling over the next steps for developing the four acres off North Avondale Road purchased by the city several years ago.
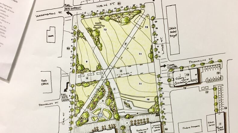
During a recent commission work session architect and Avondale resident Sheri Locke gave a detailed presentation of her rendition for the site, chosen by both public polling and city commissioners from 11 designs submitted last year.
Locke’s configuration includes an amphitheater on the northeast corner, at the apex of a natural cascading slope. Two retail/restaurant buildings front North Avondale with a “promenade” between them leading to two crisscrossing paths. The property is bisected by Franklin St. that, within the four acres, is open to pedestrians only. The middle 2 to 2.5 acres, which includes the amphitheater, is devoted to park space.
DDA Vice Chair Sam Collier said he still isn’t ready to give a specific timeline for development of the space.
“I think the next step is to do some type of public process,” he said. “I do believe for the people who live here now, and for future generations, this needs to be done with all due speed and at a reasonable cost. We don’t need to wait another five or six years to develop this property.”
About the Author
The Latest
Featured

