The Milton City Council recently approved a $849,844 construction services agreement between the city and Pencor, LLC for the renovation of the clubhouse at the former Milton Country Club.
The former Milton Country Club was acquired in 2018 along with 7 active acres with amenities including a pool, tennis courts and country club building. The building was in disrepair and in need of renovation to better serve the citizens as Milton’s Community Center. The plan calls for the facility to be managed by the city’s parks and recreation department. New plans were created in compliance with the FMCC Master Plan.
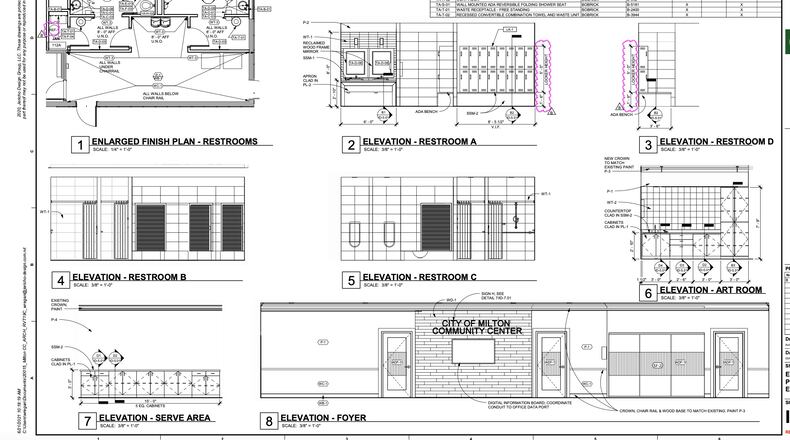
This recent agreement will renovate the interior and exterior of the building. Among the construction highlights, a new ADA accessible pad and ramp, new finishes, millwork and fixtures will be constructed throughout, along with new partitions for new spaces including a new art room.
The rear stair will be brought up to code for fire rating with new handrails, and new restrooms will be constructed with new plumbing fixtures, finishes, lockers, and other specialties.
About the Author
Keep Reading
The Latest
Featured



